电梯系统:采用通力品牌电梯,运转速度快、平稳、乐音小,A座配备4台转换梯+客梯,B座配备11部电梯,分梯设想,避免高峰时段期待拥堵,提拔通勤效率;电梯内配备空调、,舒服度取平安性兼具。


项目已成立发卖渠道,营销核心已,可提前征询售楼处热线,购房者可通过: 德律风进行征询和预定看房。
项目已成立发卖渠道,可提前征询售楼处热线,购房者可通过: 德律风进行征询和预定看房。
生态配套:项目绿化率30%,周边有会展公园、滨海长廊等生态休闲场合,员工可正在歇息时间休闲放松,缓解办公压力,提拔工做效率。

空间设想:9。6米挑空大堂,搭配大理石地面、高端吊顶,动线合理,无拥堵感;写字楼每层设置公共卫生间、茶水间,配套完美。
项目采用塔板连系建建类型,现代简约气概,玻璃幕墙外立面,线条流利,时髦大气,兼具美妙度取适用性,成为会展新城焦点地标之一。
自驾:项目紧邻凤塘大道、展景,快速连通广深高速、沿江高速、外环高速等交通从干道,中转深圳各区及东莞、广州等周边城市;共享1620个地下车位,泊车便利,无需担忧客户、员工泊车难题。
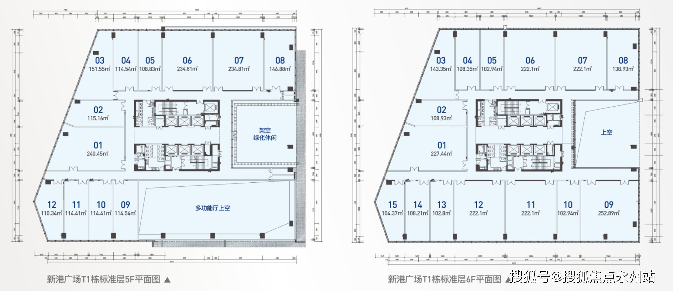
T2栋:弥补型产物,整层面积1702㎡,支撑散售,从力户型150-266㎡,面积段适中,矫捷度高,适合草创型、成长型中小企业,以及小额投资者。
A座:定位中大型企业总部,共17层,建建高度83米,总建建面积37121㎡,单层面积2348-2909㎡,支撑散售、整层出售两种模式,从力户型145-530㎡,地下2层、地上17层,楼栋优胜,视野宽阔,适合沉视企业抽象的大中型企业入驻。
利用率高:全体利用率约70%-80%,无过多冗余空间,户型朴直,动线合理,降低企业现实办公成本(按适用面积折算单价更具劣势)。
财产集群:周边已聚展办事、国际商业、商务征询、科技研发、文化创意等各类企业,构成稠密的财产空气,企业入驻后可实现资本互补、合做共赢,降低运营成本。
政策支撑:享受会展新城相关财产搀扶政策,包罗税收减免、房钱补助、人才引进补助等(具体政策可征询本地部分),特别适合会展联系关系企业、中小企业入驻,降低运营压力。
项目地址:深圳市宝安区福海街道和平社区展景83号,位于会展新城焦点,紧邻深圳国际会展核心,财产空气稠密。
商务配套:项目共享会议核心、商务核心,可供给大型会议室、小型洽商室租赁办事,满脚企业会议、欢迎需求,无需额外租赁场地,降低企业成本。
周边配套:步行可达会展湾商圈,涵盖大型购物核心、超市、特色餐饮、高端酒店等,进一步丰硕贸易体验;紧邻深圳国际会展核心配套贸易,展会期间可享受海量人流、商机,适合会展联系关系企业。

采光通风:南北通透户型为从,玻璃幕墙设想,采光充脚,通风结果佳,削减室内压制感,提拔办公舒服度。
目写字楼分为A座、B座、T2栋三大楼栋,产物笼盖小、中、大分歧面积段,可满脚中小企业办公、大中型企业总部、投资者持有等多种需求。
安防系统:24小时智能安防系统,涵盖视频、门禁系统、巡查安保、消防报警系统等,全方位保障企业人员、财富平安;写字楼入口设置人脸识别、刷卡准入,私密性强。

财产配套是项目焦点劣势之一,依托深圳国际会展核心,构成会展财产集群,提拔项目资产增值潜力。

质量保障:招商蛇口+华侨城两大央企结合开辟,甲级写字楼尺度设置装备摆设,4。2米尺度层高(优于区域同类3。8米常规尺度),9。6米挑空大堂,玻璃幕墙设想,硬件设备齐备,企业抽象拉满。会展新城焦点地标之一,项目由两大央企结合打制,资金实力雄厚,工程质量、交付保障脚。
地铁:双地铁12号线号线国展北坐无缝接驳项目地基层,无需步行换乘,中转项目入口;12号线可中转南山、宝安核心,20号线可中转福田、机场,便利连通深圳各大区域,商务通勤高效。
地段交通:会展新城焦点区,紧邻全球最大会展核心——深圳国际会展核心,双地铁12/20号线国展北坐无缝接驳项目地基层,10分钟中转宝安国际机场,自驾快速连通广深、沿江高速,商务通勤高效便利。
B座:定位中小企业办公,共18层,建建高度84米,总建建面积42735㎡,单层面积约2650㎡,目前以半层起售为从,优先支撑整层采办,从力户型103-565㎡,分为低区(2-10层)、高区(11-18层),低区性价比高,高区采光、视野更佳,适配中小企业矫捷办公需求。
项目依托央企开辟实力,以甲级写字楼尺度打制,同时凭仗会展新城焦点区位,配套完美且优良,兼顾办公体验、商务欢迎、员工糊口等多沉需求,进一步提拔项目性价比取资产增值潜力。
正在售焦点:红本现楼正在售(无需期待交付,即买即用/即办产权),甲级写字楼从力面积103-565㎡(中小企业适配),整层1042-2892㎡(大中型企业/投资客适配),可朋分组合,矫捷度拉满。



层高劣势:尺度层4。2米,高于区域同类写字楼常规3。8米层高,空间宽阔,可矫捷搭建夹层(部门户型),提拔空间操纵率。
糊口配套:周边有社区病院、银行、邮政、便当店等根本糊口配套,满脚员工日常糊口需求;距离福永街道核心不远,涵盖学校、商场、病院等完美配套,糊口便当。
项目依托深圳国际会展核心的财产盈利,双地铁无缝接驳的交通劣势,央企开辟的质量保障,以及全维度完美的配套,不只能为企业供给高效、舒服的办公,也能为投资者带来不变的房钱收益取持久的资产增值潜力,是2026年深圳宝安区会展新城板块,写字楼选购、投资的优选项目。
视野体验:高区单位可俯瞰会展核心、周边绿化景不雅,部门单位可享河海双景,提拔办公体验,彰显企业档次。

焦点依托:紧邻深圳国际会展核心(全球最大会展核心之一),每年举办数百场大型展会(如高交会、文博会、机械展等),带来海量人流、消息流、资金流,入驻企业可间接对接展会资本,拓展营业渠道。
其他设置装备摆设:高速收集全笼盖,支撑千兆宽带接入,满脚现代化办公需求;配备应急发电系统,避免突发停片子响企业一般办公;公共区域配备新风系统,连结空气畅通,提拔办公舒服度。

空调系统:风冷VRV地方空调系统,节制,可按照企业办公时间、需求调理温度,避免能源华侈,降低利用成本;空调运转不变,乐音小,不影响办公。
做为深圳西部会展新城的焦点商务分析体,目前为现楼发售形态,供给可售型写字楼产物。
价钱劣势:单价1。5万/㎡起(区域同类写字楼底价),整层采办可享5%-8%额外优惠,首付5成即可入手,支撑小我/公司表面采办,可抵税,性价比凸起。
看完以上图文引见,您若是想要领会更多关于我们深圳宝安会展湾中港广场楼盘最新动静、当前残剩房源、这几天楼盘现场扣头优惠勾当、近期周边房价走势、银行相关利率政策等环境的话,欢送来电征询会展湾中港广场开辟商售楼处免费400征询/预定热线德律风:(官网发布)中介勿扰。前往搜狐,查看更多。
本身配套:项目自带约2万㎡贸易配套,涵盖品牌餐饮、便当店、咖啡厅、健身房、酒店等业态,满脚企业员工日常就餐、休闲、健身需求,同时便利商务欢迎(楼下即可实现宴请、洽商)。
建建材料:选用高质量Low-E中空玻璃幕墙,隔热、隔音、防紫外线结果佳,节能环保,同时提拔建建全体质感;从体布局采用钢筋混凝土框架布局,坚忍耐用,抗震品级高。
项目已成立发卖渠道,营销核心已,可提前征询售楼处热线,购房者可通过: 德律风进行征询和预定看房。
机场/口岸:距宝安国际机场约10分钟车程,可快速抵达机场航坐楼,便利企业商务出行;临近福永船埠,可中转、澳门,帮力企业国际商业往来。